Spécialiste en Copropriété, cabinet de géomètre expert en Tunisie

La Copropriété
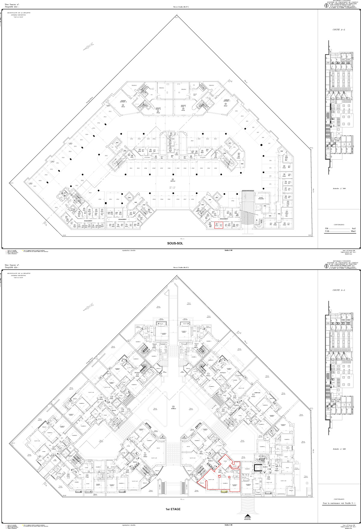
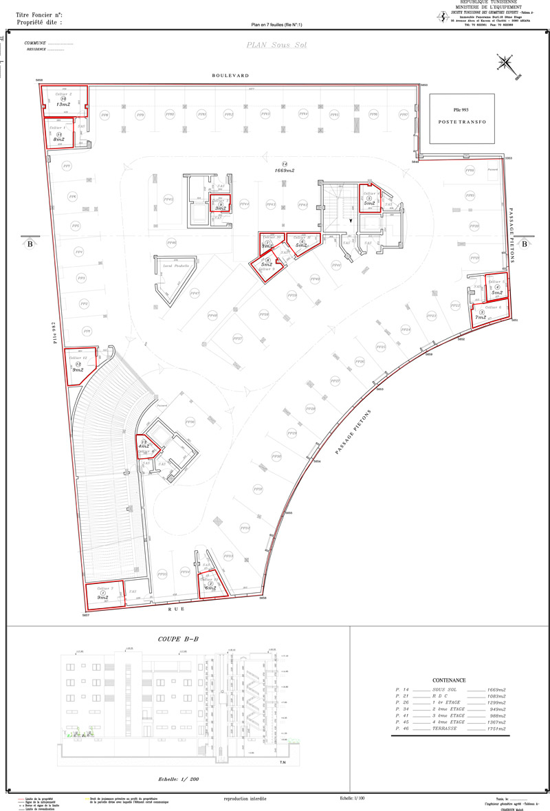
STGE réalise pour le compte des promoteurs immobiliers et des Propriétaires privés le lotissement des immeubles bâtis ou groupe d'immeubles bâtis dont la propriété est répartie, entre plusieurs personnes, par lots comprenant chacun une partie privative et une quote-part des parties communes.
STGE établit :
- Les plans de recollement qui décrivent les travaux réellement réalisés à la fin d'un chantier.
- Le lotissement vertical en lots et leurs surfaces.
- Le calcul des quotes-parts dans les parties communes.
- Le règlement de copropriété.
- Les plans définitifs de mutation des parcelles divises et indivises pour dépôt à la Conservation de la Propriété Foncière de la zone où le bien est situé, en vue de l’extraction d’un Titre Foncier Privatif.
Dans Certains cas afin d’éviter le régime trop complexe de la copropriété pour les constructions en R+1 ,on a recourt à un régime spécial qui est celui de la découpe par élément. Dans ce dernier régime aucune indivision n’est créée au sein de l’ensemble immobilier : seuls existent des éléments privatifs fonctionnellement autonomes les uns par rapport aux autres, même si ce fonctionnement peut impliquer la constitution de rapport de servitudes entre les éléments (servitudes d’appui, d’accrochage, de passages...).
Exemples
Nos Compétences
- Géomètre-Expert Plus d'infos
- Topographie Plus d'infos
- Foncier Plus d'infos
- Copropriété Plus d'infos
- Topométrie de Précision et Métrologie Plus d'infos
- Géodésie Plus d'infos
- Expertise immobilière et judiciaire Plus d'infos
- Bathymétrie Plus d'infos
- Scanner et Modélisation 3D Plus d'infos
- Photogrammétrie aérienne et Cartographie Num. Plus d'infos
