Spécialiste en Topométrie de Précision et Métrologie, cabinet de géomètre expert en Tunisie

Topométrie de Précision et Métrologie
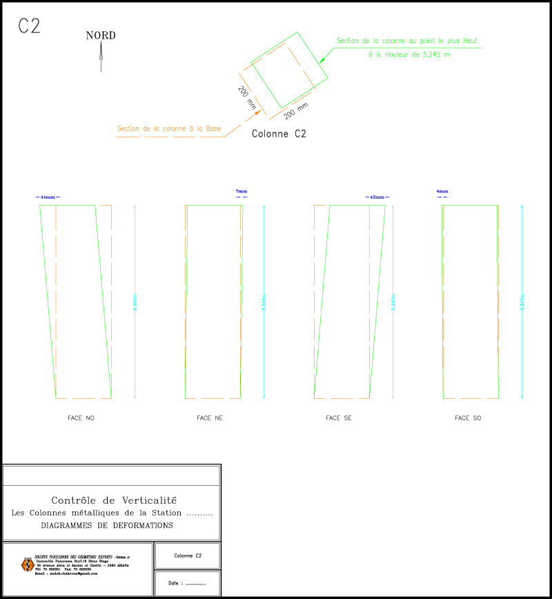
STGE assure pour le compte de Sociétés Industrielles et Groupes Pétroliers divers ,les Travaux de Contrôle Géométrique et de Tassement des Construction Métalliques (Poutres, Colonnes, Réservoirs de Stockages d’Hydrocarbures...).
Exemples
Nos Compétences
- Géomètre-Expert Plus d'infos
- Topographie Plus d'infos
- Foncier Plus d'infos
- Copropriété Plus d'infos
- Topométrie de Précision et Métrologie Plus d'infos
- Géodésie Plus d'infos
- Expertise immobilière et judiciaire Plus d'infos
- Bathymétrie Plus d'infos
- Scanner et Modélisation 3D Plus d'infos
- Photogrammétrie aérienne et Cartographie Num. Plus d'infos
